62-02 through 62-26 Roosevelt Avenue (Woodside, Queens next to LIRR station)
11 Essex Street
24 First Avenue
650 East 6th Street
400 West 57th Street (Windermere)
412 East 90th Street
469 Convent Avenue (Manhattan)
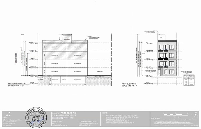
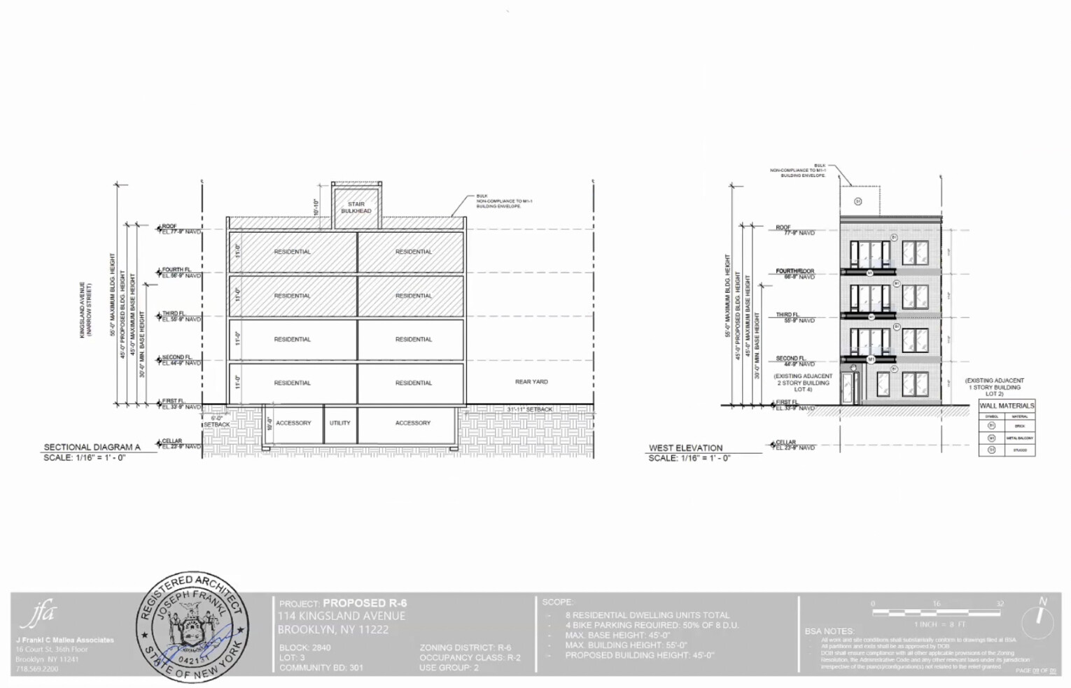
114 Kingsland Avenue (Brooklyn)
101 Bruckner Boulevard (Bronx)
Welcome2theBronx photo
1949 Bathgate Avenue (Bronx)
69-65 Yellowstone Boulevard (Queens)
335 West 35th Street
As seen on April 18, 2021 (my photos)
300 West 122nd Street
Harlem Bespoke photos:


346 Grand Concourse, Bronx
As seen on April 18, 2021 from Metro North (my photos)
1959 Jerome Avenue, Bronx
24 1st Avenue / 101 East 2nd Street
Update:
532 West 20th Street
165 East 62nd Street
As seen on April 28, 2021
210 East 52nd Street
It’s been like this for at least five or six years
As seen on April 28, 2021
167-171 Chrystie Street and 173-175 Chrystie Street
As seen on April 28, 2021
21-23 Avenue B (Manhattan)

EV Grieve photo -
2619 Ocean Parkway (Coney Island Hospital)
I like the current 80’s lobby theme more, the new one looks very generic. Exterior wise I always hate renovations that only change the street level facade, always makes the building look disjointed!
jeez how do architects get PoMo so wrong? The interior looks great but the exterior looks so disharmonious. 550 Madison comes to mind
Sorry but I love that atrium and I think ripping it out for that sterile new design is a terrible idea. These wacky 80s interiors are at the nadir of their popularity right now, but I really think that once they’re ~50 years old people will start to appreciate them, like what you’re starting to see now with mid-century modern.
This is just the latest in a series of depressing interior renovations that have robbed NYC of some of its coolest and most unique spaces. Just in the past few years we’ve lost Raymond Hood’s Art Deco McGraw-Hill Building lobby, the Philip Johnson-designed AT&T Building Lobby, the Hall of Gems and Minerals at AMNH, and Frank Lloyd Wright’s 430 Park Avenue interior.
One of the few bright spots in the preservation of modern interior design in NYC was when the UN Plaza and Ambassador Grill interiors were landmarked in 2017. Interestingly, they were designed by the same architect as 60 Wall Street, the great Kevin Roche.
63 Pitt Street (Lower East Side)

https://www.boweryboogie.com/2021/05/rebirth-of-63-pitt-street-is-a-12-story-residential-tower/

263-267 West 126th Street
98-85 Queens Boulevard






















































